-
Allgemeine Informationen
Simmeringer Hauptstraße 271
- Simmeringer Hauptstraße 271
- 1110 Wien
Information zum Projekt
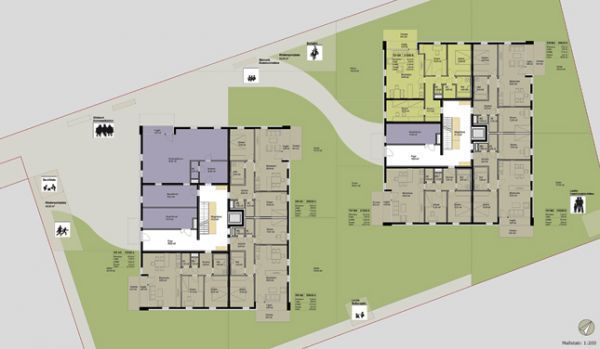
Die Erschließung erfolgt über eine ca. 60 m lange Zufahrt von der Simmeringer Hauptstraße, die Wohnungen werden über das jeweilige Foyer und Stiegenhaus erschlossen.
Bezugsfertig seit September 2011.
Das Wohnungsangebot
- 2-, 3- und 4-Zimmer-Wohnungen von ca. 56 bis 98m²
Private Freiräume
- Mietergärten (von ca. 108 bis 221m²)
- Loggien/Balkone
- Terrassen
Allgemeine Freiflächen und Gemeinschaftseinrichtungen
- Gestalteter Grünbereich mit befestigten Platzbereichen, Lauben mit Sitzgelegenheiten sowie Kinderspielplatz, umgrenzt von unterschiedlich gestalteten Rankgerüsten als Sichtschutz und Dekor
- Kinderspielraum mit Blickkontakt zur angrenzenden Waschküche
- Kinderwagenräume in den Foyers
- Fahrradabstellraum im Bereich der Tiefgarage
- Tiefgarage mit Ein- und Ausfahrt über den Zubringerweg zur Simmeringer Hauptstraße
Die Lage
- Die Wohnhausanlage liegt an der Simmeringer Hauptstraße nahe dem 1. Tor des Wiener Zentralfriedhofs
- Offentliche Verkehrsanbindung: Linie 6 Richtung Favoriten und Westbahnhof, Linie 71 zur U3/S80/Simmeringer Hauptstraße bzw. Richtung Zentrum, S 7/Zentralfriedhof (ca. 1100m)
Die Infrastruktur
- Geschäfte der Nahversorgung
- Einkaufszentren
- Schulen, Kindergärten
- Ärzte, Apotheke
- Freizeiteinrichtungen: Erholungsgebiet Laaer Wald/Böhmischer Prater, Hallen-, Sommer und Saunabad Simmering, G-Town Cine- und Entertainmentcenter (Gasometer City), Szene Wien-Hauffgasse
Information gemäß Energieausweis-Vorlage-Gesetz 2012
Stiege A: HWB 28
Stiege B: HWB 27Downloads
-
Plan & Anfahrt
-
Bilder







