-
Allgemeine Informationen
Hochwassergasse
- Hochwassergasse 56
- 1230 Wien
Information zum Projekt
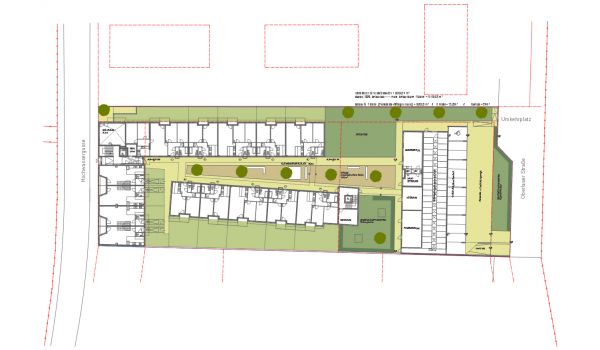
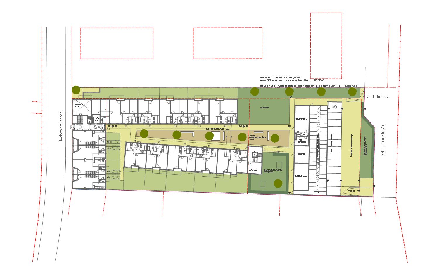
Die lang gezogene L-förmige Wohnhausanlage mit Erdgeschoß, Obergeschoß und Dachgeschoß erstreckt sich zwischen Hochwassergasse bzw. Liesingbachufer und der Oberlaaer Straße. Im atriumähnlichen Innenhof befindet sich ein weiteres Wohngebäude, im nördlichen Bauteil an der Oberlaaer Straße befinden sich PKW-Abstellplätze, Gemeinschaftsräume sowie Büroflächen. Die Erschließung erfolgt großteils über Laubengänge sowie über zwei Stiegenhäuser.
Bezugsfertig seit Dezember 2011.
Das Wohnungsangebot
- Maisonetten und Geschoßwohnungen
- Wohnungsgrößen: 2- u. 3-Zimmer-Wohnungen von ca. 57 - 97 m²
- beidseitig belichtete und belüftete Wohneinheiten
Private Freiräume
- Mietergärten
- Terrassen
- Loggien und Balkone
Allgemeine Freiflächen und Gemeinschaftseinrichtungen
- Innenhof mit Sitzgelegenheiten und Kleinkinderspielplatz
- Spielwiese
- Gemeinschaftsgarten
- Kinderspielraum mit direktem Zugang zu den Freiflächen
Die Lage
- Nähe Neilreichgasse - Oberlaaer Straße - Draschestraße - A 23/Knoten Inzersdorf
- öffentliche Verkehrsanbindung: ÖBB-Bahnhof/Inzersdorf Ort, Regionallinien Richtung Wien-Meidling, Linie 66A bzw. Linie 67 zur U1/Reumannplatz
Information gemäß Energieausweis-Vorlage-Gesetz 2012
HWB 41
Downloads
-
Plan & Anfahrt
-
Bilder





